
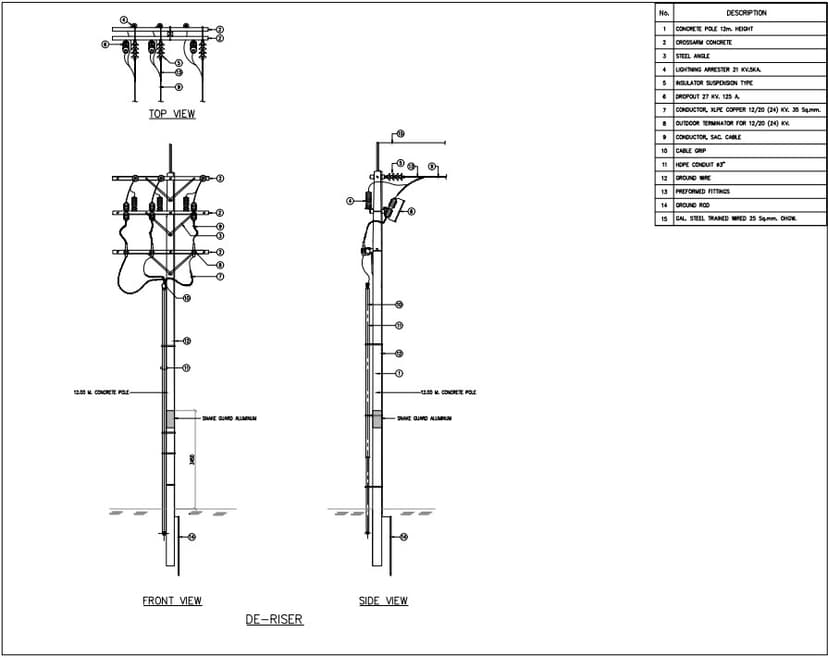
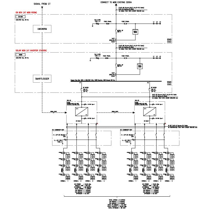
เราให้บริการออกแบบระบบไฟฟ้าแบบครบวงจร โดยมุ่งเน้นความปลอดภัย ประสิทธิภาพ และความคุ้มค่าสูงสุดในทุกโครงการ ไม่ว่าจะเป็นงานระบบไฟฟ้าภายในอาคาร โรงงานอุตสาหกรรม หรืองานระบบควบคุมอัตโนมัติ พร้อมจัดทำแบบวิศวกรรมด้วย AutoCAD 2D ที่มีความละเอียด ถูกต้อง และเป็นมาตรฐาน สามารถนำไปใช้งานจริงได้ทันที ด้วยประสบการณ์และความเข้าใจเชิงลึกในงานวิศวกรรมไฟฟ้า เราสามารถออกแบบและเขียนแบบได้อย่างครบถ้วน ตั้งแต่แนวคิดจนถึงแบบก่อสร้าง (Construction Drawing) ช่วยลดความเสี่ยงของปัญหาในอนาคต เพิ่มความแม่นยำในการติดตั้ง และช่วยให้โครงการดำเนินงานได้อย่างราบรื่น พร้อมทั้งเพิ่มประสิทธิภาพในการใช้พลังงานได้อย่างสูงสุด


